项目名:阳光汇景
风格:现代
闹中取静 宜人宜居
回家 就是一次心灵的回归
#关于案例#
静听花开花落
这里就是我们想要的地方
作为一对90后新人,相比较于繁复豪华的“观赏型”装修风格,他们更希望拥有一个开放、自由而流畅的居住空间,所以房型改造成了设计师陈晟的第一任务。
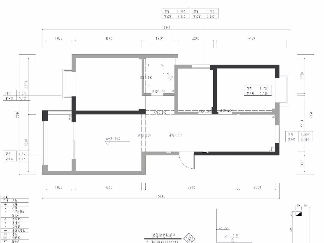
改造后户型图
改造后的房型功能区划分明显,进门处设计师设计成过厅,对客餐厅进行分隔。另外,储物空间的重新规划使房子的实用性大大增加。
# 卫生间改造 #
入门位置左侧,山水空间装饰陈晟设计师利用原屋框架将客餐厅功能区进行划分,另外使用装饰画和照射灯打造了一个过厅。客餐厅整体使用灰色大理石做地铺,整体色调以深原木和灰、白色为主,让空间显得通透清晰,简约大方。
# 客厅改造 #
客厅和阳台部分,山水空间装饰设计师陈晟在完成功能区设置后,利用剩余位置 打造了多处储物空间,满足业主未来储物需求。

对于新家,他们不需要过多复杂的元素,也不要千篇一律的装饰,简约整洁的设计,给业主提供了他们所需:一个非华丽的可以让脑袋放空的家居空间。
他、她 | FAMILY
在名为“家”地方
有幸福,有温暖,有坎坷
家便是家
<p style="color:#333333;font-family:" font-size:17px;text-align:justify;background-color:#ffffff;"="">
